乌克兰最大的日本餐厅,由Sergey Makhno Architects工作室设计。应主厨Fujiwara Yoshihiro的要求。Fujiwara Yoshi是一个800平方米的迷宫,旨在迷失在日本文化的伟大中,你的目光会被细节所吸引。
“这个项目对我来说很特别。日本是我的权力之地。每次去那里我都会爱上这个国家。我总是想要更多。因此,我很乐意将我的一片爱放在心中。我们的主要任务是传达日本哲学,而不是用一些陈词滥调来大喊大叫。 餐厅的设计是由日本决定的舒适,但与乌克兰的灵魂一起阅读“, - 谢尔盖Makhno建筑师工作室的创始人Sergey Makhno说。
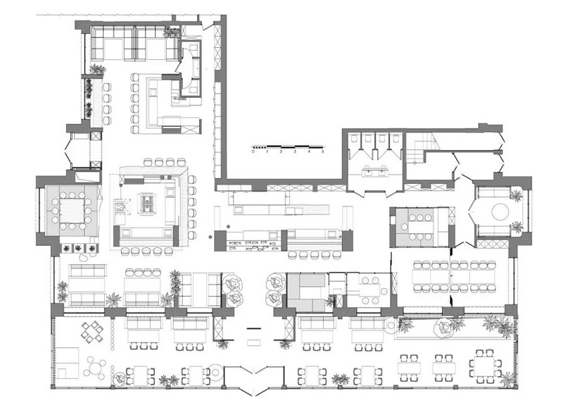
迷宫延伸过露台花园。 全景窗户充满了白昼。Makhno的作者照明漂浮在黑色天花板下面:极简主义的Gemini,简洁的陶瓷Runa,如果你看看Lakuna灯,你会看到日本本身。 落地灯,以chasen的形式制作(用于抹茶的拂尘),将光线直接播放到客人的盘子上。
花园在休息区投下阴影。 当你在附近时,赶上一两个。从东京附近的一个小镇带来的盆景树小巷导致海洋生物和淡水水族馆,后面有金枪鱼加工的笨重的桌子。
寿司吧已经在大型富士灯下制作即时卷。 Sergey Makhno亲自设计了他们,考虑那个雪白的日本山。
对于商务谈判,有一个单独的房间,木墙,地板和天花板 , 所以没有人偷听。在一个大型的宴会厅里,在灯的罂粟花头下,一张桌子穿过房间。
在竹chasen豆芽下,软奶油座椅和椅子压在桌子上。 一切都是专门为这家餐厅。
在他们旁边,是天妇罗和robata烧烤区。
在榻榻米房间,天空延伸到墙壁和椅子上,而ikebana用鲜花树枝待客。
“大多数日本餐厅都很低调,小而且非常舒适。因此,我们非常注重布局,以便同时容纳250位客人。 然而,有一种安逸和安心的氛围“, - 谢尔盖马克诺建筑师事务所的总设计师伊利亚·托夫斯托格说。
不是普通的灯光,在一个榻榻米房间有烟囱,在另一个榻榻米房间有一个丰满的铜花。他们可以告诉你隐藏在日本花园屋顶后面的太阳。
Fujiwara Yoshi是一家拥有乌克兰灵魂的日本餐厅。 这是一个你不想离开的迷宫。在这里,美学华丽的功能,管道成为灯,花从天花板生长,苔藓 - 从板。这是一个休息你的眼睛,屏住呼吸,品味日本的地方。
万维商业空间设计一直以来坚持初心,做原创的、以消费者为中心的、符合品牌定位的设计。多年来专注于精品超市、购物中心、百货、街区、菜市场设计,认真对待每一个项目,不放过每一个细节。未来,商业设计领域将不断的创新、改革甚至颠覆,万维将一如既往的跟随时代的潮流,做引领行业的商业空间设计。更多设计案例请浏览万维设计官网:http://www.onewedesign.com
推荐阅读:
怎样做好商业空间设计
http://www.onewedesign.com/wanweidongtai/12-730.html
商业空间设计公司-深圳万维设计
http://www.onewedesign.com/wanweidongtai/12-873.html




