荷兰鹿特丹缤纷市场(Markthal)对大多数人来说应该并不熟知,或者从未听说过,然而对于从事农贸行业尤其是农产品物流开发的从业人员却是不可或缺的研究对象和标杆示范性项目。

△缤纷市场
缤纷市场位于鹿特丹市中心Rotte河的大坝原址上,与中世纪晚期的劳伦斯教堂毗邻。缤纷市场建立的原因是由于当时欧洲颁布新法规,新鲜肉类和冷藏食物不再被允许在室外销售,同时鹿特丹市需要更多的住房和停车空间,因此这个集合了菜市场、公寓和停车场的网红室内综合体便应运而生了。


△缤纷市场区位
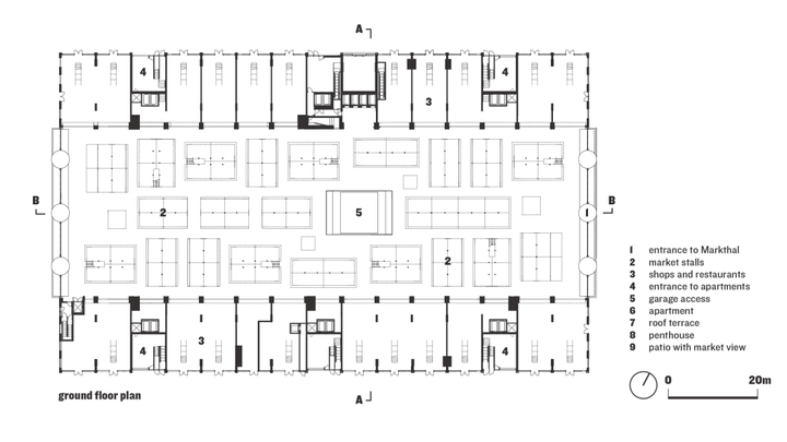
市场地上12层,地下4层,总建筑面积约9.5万平方米,包括228套公寓,地下设有超市和1200个停车位,内部中央大厅设有96个食品摊位和商店店面,提供荷兰花卉和奶酪、意大利冰激凌、日本寿司等全球各地的美食商品,整个项目投资额高达1.75亿欧元。

△剖面示意图

△平面布局示意图
建筑由国际著名建筑事务所荷兰MVRDV设计,其外形如同一个大拱门,中间是高达40m的内部中央大厅,两侧设置了商店及公寓。中央拱形大厅前后两侧的立面完全由通透玻璃组成,所有玻璃安装在由钢缆组成的,类似于网球拍表面的悬网结构上,在保持通透性的同时可以灵活性的应对当地的暴风雨气候。


△整体外观

△内部场景


△中央大厅玻璃立面
全玻璃的中央大厅立面不仅改善了内部的采光条件,同时让室内外的视觉联系更加流畅,互为借景。外立面的其余部分则使用了天然的灰色石材,以凸显中央大厅的立面效果,尤其是在夜晚灯光的照耀下,内部超大型彩色壁画呈现出美轮美奂的视觉效果,犹如一幅闪闪发光的立体水彩画。



△中央大厅夜晚视觉效果
内部覆盖整个墙面和屋顶的壁画由艺术家Arno Coenen和Iris Roskam创作,名为“丰收的号角(Horn of Plenty)”,面积高达11000平方米,堪称荷兰最大的艺术品。画作的创作灵感来源于西斯廷教堂里米开朗基罗的《创世纪》穹顶,因此这个市场也被称为是“现代版的西斯廷教堂”。


△米开朗琪罗《创世纪》穹顶(局部)
画面描绘的是新鲜蔬果、面包、花卉等,由皮克斯软件渲染,然后打印在穿孔铝板上,再安装在隔音板上以控制噪音。设计之初墙壁和屋顶是计划安装Led显示屏,这样可以实现画作内容和效果的切换,但最终因预算问题取消,改用现在的方式加以实现。



△巨幅壁画
每间公寓都有内部窗户可以俯瞰中央大厅内的生活场景,让业主在家足不出户就可以享受到一边是城市美丽风景,一边是人间烟火气息的双重视觉体验。

△大厅内二层平台

△公寓内看市场

△公寓内看城市
缤纷市场是荷兰第一家室内菜市场,也是全球首个将菜市场与公寓相结合的建筑,已成为鹿特丹的地标之一,是全世界室内菜市场设计难以逾越的天花板和学习对象。

△场地平面

△一层平面图

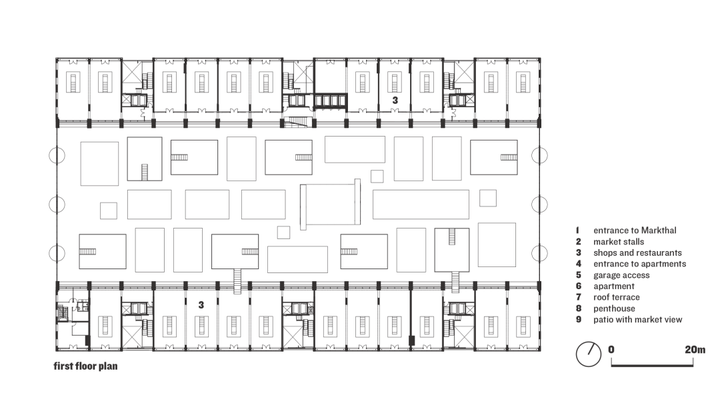
△二层平面图

△公寓标准层平面

△顶层复式公寓下层平面

△A-A剖面

△B-B剖面
【免责声明】本文来源于墨居建筑,版权归原作者所有,内容仅供交流与学习,不构成任何商业目的。版权归原作者所有,如涉及作品内容、版权和其它问题,请及时与本站联系,我们将在第一时间处理。谢谢!
推荐阅读:
菜市场变网红打卡地,菜市场的华丽转身
https://www.onewedesign.com/caishichangsheji/58-3562.html
盘点全球最美的网红菜市场
https://www.onewedesign.com/caishichangsheji/58-2230.html




