过往的经济形势总是倾向于支持生产新建筑,但钢筋和混凝土结构的先驱们却利用“再生”给水果和蔬菜摊贩带来惊人的跨度。
无论是浮动屋顶还是悬臂式支撑结构,都在新市场和旧工厂中找到了理想的功能。改造后的波罗的海站前市场是街区的符号存在,也是现代商业空间的探索的有机尝试。

波罗的海站前市场位于爱沙尼亚塔林市主火车站和备受欢迎的Kalamaia居民区之间。市场从1993年运营至今,琳琅满目的货品和熙熙攘攘的买卖氛围吸引了附近居民及众多游客前来。

2016年初,市场开始翻新。
这次改造的目的是在保留其喧嚷嘈杂的气氛及市场的历史特征前提下,创造一座丰富多样的现代市场。事务所整合了项目周边的环境,以吸引更多的潜在目标人群,从乘坐火车的旅客到当地居民,从年轻人到游客,甚至任何一位可能会穿过市场的人都是这个项目的受众群体。


原建筑由三座两层楼高的仓库组成,这些石灰石外墙的仓库建于19世纪70年代,其功能随着市场在20世纪90年代开业而改变。此次建筑设计希望重点突出充满力量的结构元素,因此扩建了一片巨大的锯齿状屋顶。屋顶的形状随原本建筑的形状和大小连绵起伏。


锯齿屋面的顶部由偏光玻璃构成,可以过滤射入的自然光,既照亮了整个空间,又不会对商品、店家和消费者产生不良影响。


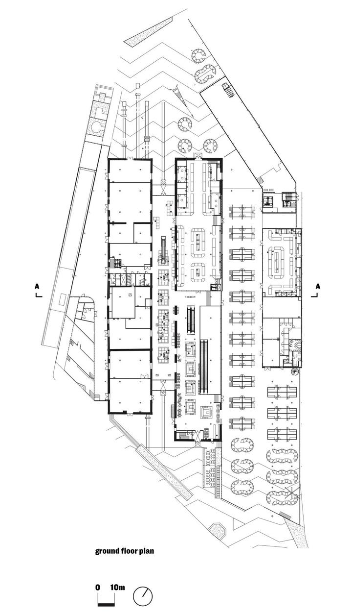
市场内部的改造依据三层既有平面和平面之间的空间布局,并增加了用于容纳新功能空间的地下室。


朝向波罗的海火车站的屋顶的前半部分被保留下来形成了一个露天市场,和原本的市场一样在夜晚关闭。由于露天市场是游客最希望体验的购物形式,因此它被设置在了最显眼的位置以吸引路人。露天市场后部设有木质售货亭,面包房、甜品店和香料店等小型店铺坐落于此。




露天市场的两侧分别为早市广场和夜市广场,二者的名字代表了人们一天之中在最适合在这里度过的时段。两个广场通过缓坡和露台彼此相连,舒适的就餐区、儿童游乐场、咖啡厅和餐厅分布其间,满足访客从早到晚的不间断休闲需求。




市场的首层布局需要渲染出一种熙熙攘攘的买卖氛围。设计师在这里设置了丰富多彩的店面形式以达到热闹的空间效果。中央建筑中设有一条食品大道,囊括了市场的经典功能。肉类、鱼类、奶制品摊位、蔬菜摊位、以及必不可少的小吃摊位并肩设置,一起为游客带来全新的波罗的海站前市场体验。



二层市场的商品包含了原本市场的精华部分,即古董、二手商品和衣物;在此基础上,设计师增加了爱沙尼亚风手工家庭用品,使商品种类更加丰富。高耸的木线天花和充足的自然光照为整个二层空间营造出了一种通透而开放的感觉,进一步提高了购物的舒适性。为了充分利用二层的良好视野,设计师还设置了一个餐饮区和一个啤酒吧,二者都设有露台,人们可以在这里享受正午的阳光。

建筑内部设计的重点在于展现原本仓库的历史,同时避免创造全新的历史样貌细节,在空间中使用了各种颜色的彩砖以及相同尺寸的瓷砖,店面和滑轨则由木材和黑色金属构成。整体采用内敛的暖色灯光,在展示特定商品的时候可以采用特定的照明模式。



地下一层平面图

一层平面图

地下一层平面图


剖面图
项目名称:波罗的海站前市场 Baltic Station market
项目地点:爱沙尼亚,塔林
项目时间:2014—2017
建筑面积:25,000平方米
建筑设计:KOKO architects
建筑设计师:Lembit-Kaur Stöör, Martin Tago, Maia Grimitliht, Raivo Kotov
室内建筑师:Kärt Loopalu
景观建筑师:Eleriin Tekko
摄影师:Tõnu Tunnel
业主:Astri Kinnisvara OÜ
AFTERWORD
波罗的海站前市场的成功在于其本身优越的地理位置,同时为大量卖方提供一个全新目的地,激发他们灵感的落脚点。在这里,商家可以不断探索,以最佳方式展现自己的品牌,给人们以及游客带来浓厚的后苏维埃式体验。
改造后的市场于2017年5月开业,并且在首周迎来了23万游客。
【免责声明】本文来源于网络,版权归原作者所有,内容仅供交流与学习,不构成任何商业目的。版权归原作者所有,如涉及作品内容、版权和其它问题,请及时与本站联系,我们将在第一时间处理。谢谢!
推荐阅读:
杭州最潮菜市场:文二菜市设计解读
https://www.onewedesign.com/xingyezixun/13-3382.html
双塔·TTD-MARKET:时尚新潮与市井烟火的碰撞交融
https://www.onewedesign.com/xingyezixun/13-3414.html




